Description
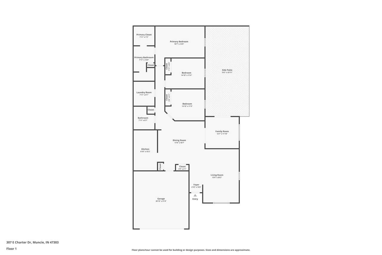
Move right in! This beautiful home at 5K Estates has been extremely well maintained and is fully upgraded! It offers the utmost in convenient, low maintenance living. At over 1900 sf, you aren't sacrificing on space. This home is very well designed with a large open living space. The living room is comfortably carpeted and features 6 speakers for built in surround sound. It is open to the kitchen and dining area. The sun room is open to the dining area and kitchen. With doors installed that can close this off from the living space, it is a great versatile space that would make an excellent family room, office, or den. The kitchen features tons full height cabinetry, quartz counter tops, a double oven, cooktop, dishwasher, microwave, bar height counter for seating, and even a built in bar glass rinser. The three bedrooms are located off the hall along with the hall bath. The hall bath is large and has a solid surface vanity top and a brand new tub/ shower combo . The laundry room is fully equipped with tons of cabinetry for storage. Washer and dryer stay. The primary bedroom is located at the back of the home and has nice tray ceilings along with a huge bathroom, with lots of storage, solid surface counter tops, and walk in closet. The walk in closet is fully customized with all the storage you need! Outside there is an extra large patio which is great for grilling out and relaxing. This home has a low maintenance all brick exterior. It is also easily accessible with zero steps to get in the home. This home is truly move in ready!
-
3BEDS
-
0.15ACRES
-
2BATHS
-
01/2 BATHS
School Information
Description
Move right in! This beautiful home at 5K Estates has been extremely well maintained and is fully upgraded! It offers the utmost in convenient, low maintenance living. At over 1900 sf, you aren't sacrificing on space. This home is very well designed with a large open living space. The living room is comfortably carpeted and features 6 speakers for built in surround sound. It is open to the kitchen and dining area. The sun room is open to the dining area and kitchen. With doors installed that can close this off from the living space, it is a great versatile space that would make an excellent family room, office, or den. The kitchen features tons full height cabinetry, quartz counter tops, a double oven, cooktop, dishwasher, microwave, bar height counter for seating, and even a built in bar glass rinser. The three bedrooms are located off the hall along with the hall bath. The hall bath is large and has a solid surface vanity top and a brand new tub/ shower combo . The laundry room is fully equipped with tons of cabinetry for storage. Washer and dryer stay. The primary bedroom is located at the back of the home and has nice tray ceilings along with a huge bathroom, with lots of storage, solid surface counter tops, and walk in closet. The walk in closet is fully customized with all the storage you need! Outside there is an extra large patio which is great for grilling out and relaxing. This home has a low maintenance all brick exterior. It is also easily accessible with zero steps to get in the home. This home is truly move in ready!
© 2026 Indiana Regional MLS All rights reserved. The data relating to real estate for sale or lease on this web site comes in part from IRMLS. IDX information is provided exclusively for consumers' personal, non-commercial use and may not be used for any purpose other than to identify prospective properties consumers may be interested in purchasing. Information is deemed reliable but is not guaranteed accurate by the MLS or RE/MAX Real Estate Groups. Data last updated: 2026-01-14T17:28:01.693.
