Description
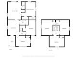
Welcome home to this beautifully remodeled 1.5-story property that’s truly move-in ready! The main level offers a bright and inviting living room, plus a spacious eat-in kitchen featuring crisp white cabinetry, butcher block countertops, a classic white apron sink, and all brand-new appliances. The main-floor primary suite includes a walk-in closet and a stunning en suite bath with a tiled walk-in shower. Two additional bedrooms and a full bath complete the main level. Upstairs, you’ll find a versatile loft space with a convenient half bath, along with two more bedrooms—perfect for guests, home office space, or extra living needs. Major updates provide peace of mind, including brand-new siding, roof, HVAC system, and water heater. Immediate possession available—this home is fully updated and ready for its new owners to move right in!
-
5BEDS
-
0.11ACRES
-
2BATHS
-
11/2 BATHS
School Information
Description
Welcome home to this beautifully remodeled 1.5-story property that’s truly move-in ready! The main level offers a bright and inviting living room, plus a spacious eat-in kitchen featuring crisp white cabinetry, butcher block countertops, a classic white apron sink, and all brand-new appliances. The main-floor primary suite includes a walk-in closet and a stunning en suite bath with a tiled walk-in shower. Two additional bedrooms and a full bath complete the main level. Upstairs, you’ll find a versatile loft space with a convenient half bath, along with two more bedrooms—perfect for guests, home office space, or extra living needs. Major updates provide peace of mind, including brand-new siding, roof, HVAC system, and water heater. Immediate possession available—this home is fully updated and ready for its new owners to move right in!
© 2026 Indiana Regional MLS All rights reserved. The data relating to real estate for sale or lease on this web site comes in part from IRMLS. IDX information is provided exclusively for consumers' personal, non-commercial use and may not be used for any purpose other than to identify prospective properties consumers may be interested in purchasing. Information is deemed reliable but is not guaranteed accurate by the MLS or RE/MAX Real Estate Groups. Data last updated: 2026-02-09T08:27:45.993.
