Description
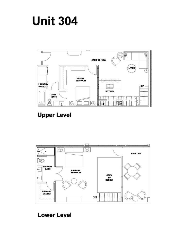
Welcome to ONE15, an exceptional new condominium community located on iconic Kirkwood Avenue, perfectly poised between Bloomingtons Courthouse Square and the Indiana University campus. Designed to offer a seamless blend of modern style, downtown convenience, and thoughtful amenities, ONE15 presents a rare opportunity to own a truly elevated urban home. At the ONE15, you can select from one of several upscale design palettes to customize your living space. Our professional interior designer has curated a collection of finishes that allows owners to uniquely design their new urban home. Our kitchen appliance packages create the perfect balance of innovation, quality, and purposeful design for your inner chef, including luxury brands such as Wolf, Cove, and Sub Zero. Unit 304 is a 2 bedroom, 2 bath townhome on the 3rd and 4th floors of the eastern side of the building. The lower level showcases an open living room and kitchen with laundry and a second bedroom and bath. Upstairs is home to a beautiful primary suite with walk-in closet, ensuite and covered balcony. A separate storage unit is included along with a parking space in the attached secure garage.Work with our incredible designer to custom build the home of your dreams. Hurry only 6 units left, reserve now before it's too late!
-
2BEDS
-
N/AACRES
-
2BATHS
-
01/2 BATHS
School Information
Description
Welcome to ONE15, an exceptional new condominium community located on iconic Kirkwood Avenue, perfectly poised between Bloomingtons Courthouse Square and the Indiana University campus. Designed to offer a seamless blend of modern style, downtown convenience, and thoughtful amenities, ONE15 presents a rare opportunity to own a truly elevated urban home. At the ONE15, you can select from one of several upscale design palettes to customize your living space. Our professional interior designer has curated a collection of finishes that allows owners to uniquely design their new urban home. Our kitchen appliance packages create the perfect balance of innovation, quality, and purposeful design for your inner chef, including luxury brands such as Wolf, Cove, and Sub Zero. Unit 304 is a 2 bedroom, 2 bath townhome on the 3rd and 4th floors of the eastern side of the building. The lower level showcases an open living room and kitchen with laundry and a second bedroom and bath. Upstairs is home to a beautiful primary suite with walk-in closet, ensuite and covered balcony. A separate storage unit is included along with a parking space in the attached secure garage.Work with our incredible designer to custom build the home of your dreams. Hurry only 6 units left, reserve now before it's too late!
© 2025 Indiana Regional MLS All rights reserved. The data relating to real estate for sale or lease on this web site comes in part from IRMLS. IDX information is provided exclusively for consumers' personal, non-commercial use and may not be used for any purpose other than to identify prospective properties consumers may be interested in purchasing. Information is deemed reliable but is not guaranteed accurate by the MLS or RE/MAX Real Estate Groups. Data last updated: 2025-11-06T19:28:07.02.
