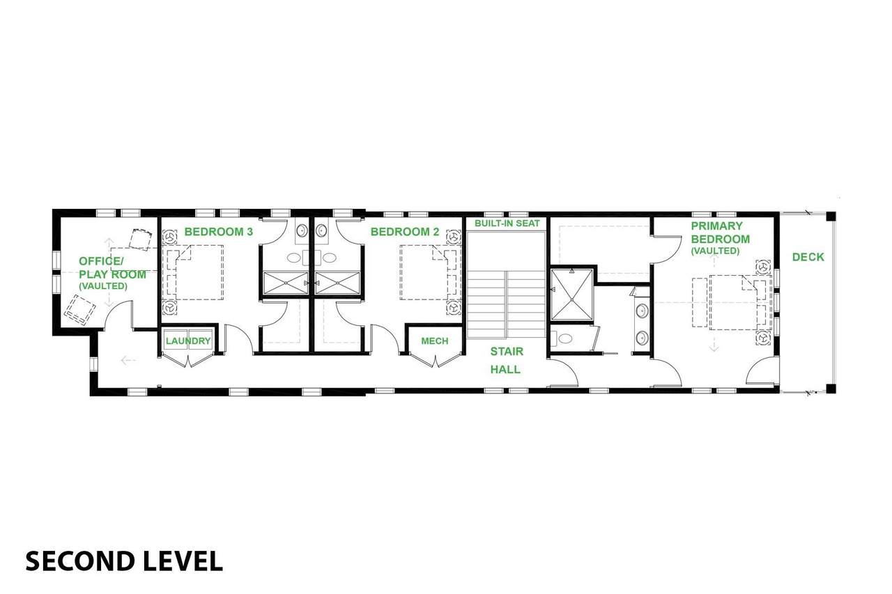
Description
Custom New Construction Modern Tudor less than 2 blocks south of Angela Blvd. and the renowned University of Notre Dame, with an easy walk to campus, Eddy Street Commons, and Trader Joe's. This home features just under 4500 sq. ft. of luxury finishes designed by Flourish Interiors and built by Allen Scott Construction. The second story deck offers views of Eddy St. and campus. The home backs up to Frederickson Park so you'll have no rear neighbors and access to trails and nature while being moments from campus. 4 spacious bedrooms all with en-suite full baths, tile showers, custom millwork and design. If you are a discriminating buyer looking for a multi-generational, near Notre Dame property....the wait will soon be over. Ground breaking was Jan. 2026 and home be available for occupancy around Nov 2026.
-
4BEDS
-
0.09ACRES
-
4BATHS
-
11/2 BATHS
School Information
Description
Custom New Construction Modern Tudor less than 2 blocks south of Angela Blvd. and the renowned University of Notre Dame, with an easy walk to campus, Eddy Street Commons, and Trader Joe's. This home features just under 4500 sq. ft. of luxury finishes designed by Flourish Interiors and built by Allen Scott Construction. The second story deck offers views of Eddy St. and campus. The home backs up to Frederickson Park so you'll have no rear neighbors and access to trails and nature while being moments from campus. 4 spacious bedrooms all with en-suite full baths, tile showers, custom millwork and design. If you are a discriminating buyer looking for a multi-generational, near Notre Dame property....the wait will soon be over. Ground breaking was Jan. 2026 and home be available for occupancy around Nov 2026.
© 2026 Indiana Regional MLS All rights reserved. The data relating to real estate for sale or lease on this web site comes in part from IRMLS. IDX information is provided exclusively for consumers' personal, non-commercial use and may not be used for any purpose other than to identify prospective properties consumers may be interested in purchasing. Information is deemed reliable but is not guaranteed accurate by the MLS or RE/MAX Real Estate Groups. Data last updated: 2026-02-08T07:28:41.657.
